From Cramped to Calm: Designing a Home for the Piazza Family
For the Piazza family, their home had reached a tipping point. It was an older house on a street full of similar homes in Arlington, VA—solid, familiar, but no longer suited to how they lived. The kitchen and dining areas overlapped awkwardly. The primary bedroom and bathroom felt undersized and disconnected. Even with just the two of them, daily routines felt more complicated than they should have.
While many neighbors were renovating for surface updates, the Piazzas were clear about their priority: function first. They wanted a home that worked better without losing the character that made them choose it in the first place.
The Challenge: An Older Layout That No Longer Fit
The issues weren’t cosmetic. The existing kitchen occupied space better suited for dining, forcing rooms to compete rather than complement each other. Circulation through the back of the house felt tight, and the primary suite lacked both space and privacy.
Their goals were focused and practical:
-
Create a kitchen and dining area that could coexist comfortably
-
Build a true primary suite with space, light, and calm
-
Improve flow across both floors without over-modernizing the home
The challenge was scale. These problems couldn’t be solved by reworking a single room.
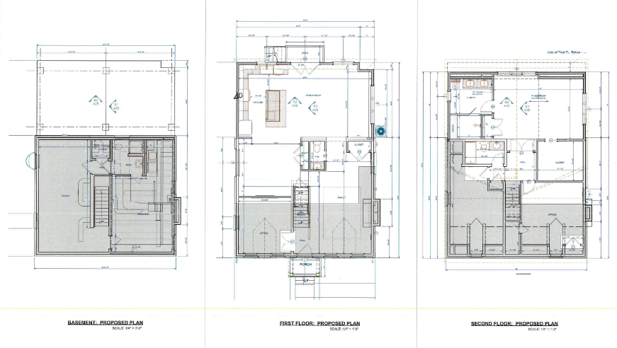
The Solution: A Two-Story Rear Addition
Working with MOSS, the Piazzas committed to a two-story rear addition—approximately 14’ x 28’—that required removing the entire back of the house. It was a significant move, but one that addressed the root issues directly.
Key layout decisions included:
- Relocating and expanding the kitchen to the rear, allowing it to function alongside a properly sized dining area
- Creating a new primary suite on the second floor, separated from public spaces below
- Reorganizing circulation so movement through the home felt natural instead of forced
Care was taken to respect the existing architecture, tying new structure, rooflines, windows, and flooring seamlessly into the original home.

The Experience: Big Changes, Clear Guidance
Removing half of a house isn’t a small decision. What mattered most to the Piazzas was clarity; understanding why each move was being made and how it would affect daily life.
Throughout the process, decisions were grounded in use, not trend. Instead of adding features for visual impact alone, each choice was evaluated by how it would function day to day. The scope was large, but the process felt deliberate rather than disruptive.
The Result: Space Where it Matters
The expanded kitchen and dining area now function as distinct but connected spaces. There’s room to cook, eat, and move without overlap. Hosting no longer requires rearranging furniture or working around tight corners.
Upstairs, the new primary suite delivers what the original home never could. One standout detail (a picture window set into the shower and framed with pencil trim) brings in natural light while maintaining privacy. Wainscoted tile wraps the space, adding texture and restraint without excess. It’s a small moment with a big impact, turning a daily routine into something calmer and more considered.
Why This Project Matters
The Piazza project isn’t about dramatic finishes or trend-driven design. It’s about solving real problems with thoughtful planning. By prioritizing function, respecting the home’s original character, and making targeted, meaningful changes, the Piazzas gained a house that finally supports how they live.
Sometimes the most successful remodel isn’t about doing more everywhere. It’s about making the right moves in the right places.


